Schalpläne sind Ausführungspläne, die die Geometrie der Schalung bzw. die Form darstellen, in welche der Beton gegossen wird, um das gewünschte Bauteil herzustellen. Sie zeigen das zu errichtende Bauteil maßstäblich in Form von Grundrissen, Ansichten und Schnitten.
Dieser Artikel beschreibt, welche Feinheiten zu beachten sind, um ein optimales Ergebnis zu erhalten.
Auf eine saubere und vollständige planerische Darstellung ist Wert zu legen.
Dazu zählen u.a.:
- alle für die Schalung relevanten Bauteilkanten sollten sichtbar sein und bemaßt werden
- Schriftgrößen sind entsprechend Vorgaben zu wählen (0.18, 0.25, 0.35) und sind für einen Plan möglichst einheitlich anzuwenden
- Vorgegebene Linienstärken verwenden (gleicher Bauteil – gleiche Stiftdicke)
- Texte und Titel in einer Flucht anordnen – steigert die Lesbarkeit
- Eindeutige Trennung der Hinweislinien/Hilfslinien und der Bauteile
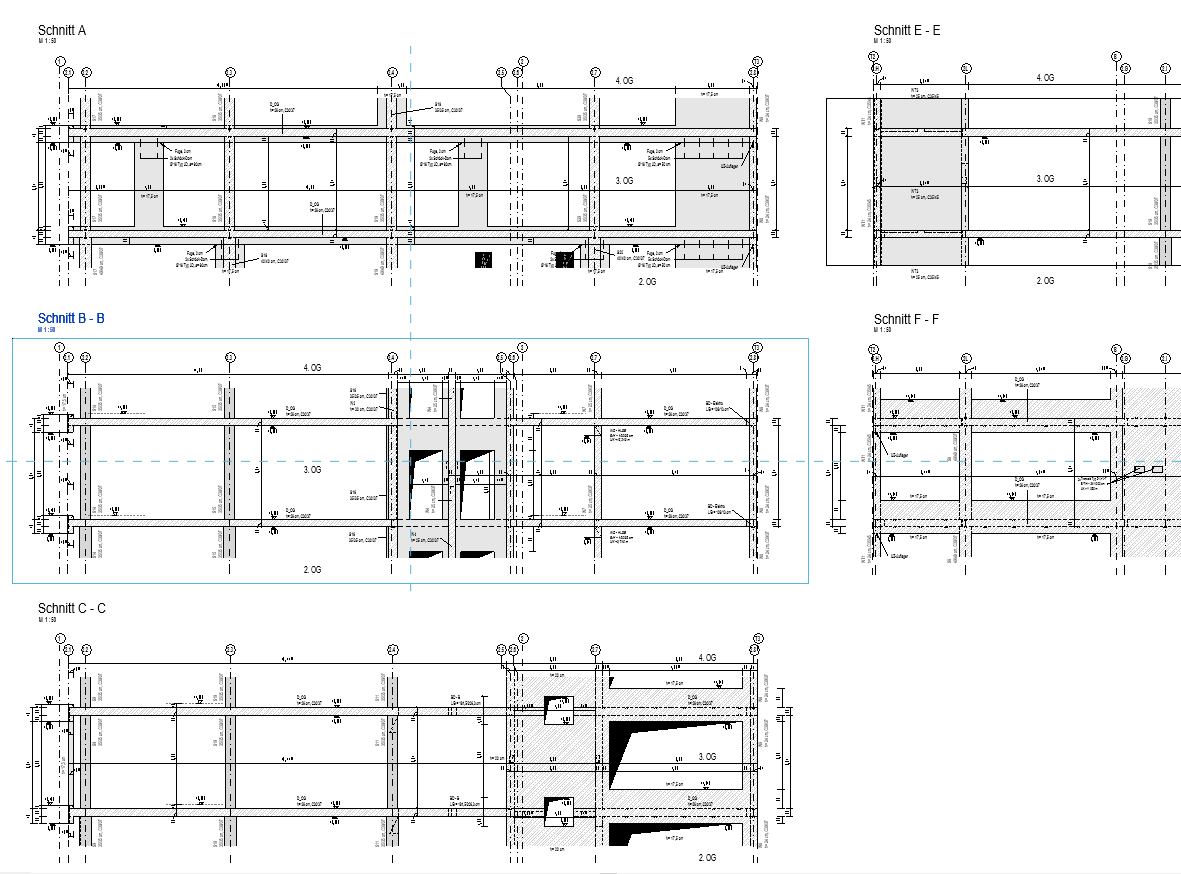
- Trennung am Plan nach Ansichten – Übersichten, Schnitte, Details etc. jeweils in einem Bereich des Planes darstellen
- Einheitliche Höhe von Maßketten
- Nicht modellierte Bauteile (Schrauben, Steifen etc.) sind in allen Details nachzuführen
- Schalpläne werden auf Tragwerksansichten erstellt. Diese ermöglichen eine Blickrichtung sowohl nach Oben und nach Unten
- Als Bezugsebene sollte die Rohdeckenoberkante "RDOK" ausgewählt werden
- Eine neue Tragwerksansicht erstellt man unter dem Reiter "Ansicht"
Die Ansichtsrichtung, der Ansichtsbereich, der Bildausschnitt und die zugewiesene Ansichtsvorlage ist zu kontrollieren und einzustellen:
Zuweisen einer Ansichtsvorlage
Jeder erstellten Ansicht sollte nach der Erstellung die entsprechende im Template hinterlegte Ansichtsvorlage zugewiesen werden.
Einstellen der Ansichtsrichtung
Im Tragwerksplan kann sowohl die Ansichtsrichtung nach Oben als auch nach Unten eingestellt werden.
Bei Deckenansichten nutzt man die Ansichtsrichtung nach Oben und bei Fundamenten/ Bodenplatten sollte die Ansichtsrichtung nach unten eingestellt werden.
Erstellen des Ansichtsbereichs
Insbesondere bei unterschiedlichen Geschosshöhen sollte im Ansichtsbereich die Höhe der Schnittebene bei jeder erstellten Ansicht kontrolliert und eingestellt werden. Dabei sollte die Schnittebene durch die Türöffnungen des Geschosses schneiden.
Die Ansichtstiefe definiert die Höhe, bis zu welcher Elemente dargestellt werden sollen (z.b. bei einer Deckenansicht bis zur Rohdeckenoberkante RDOK).
Wird eine höhere Ansichtstiefe gewählt, werden die über der Geschossdecke liegenden Elemente als verdecktes Element angezeigt.
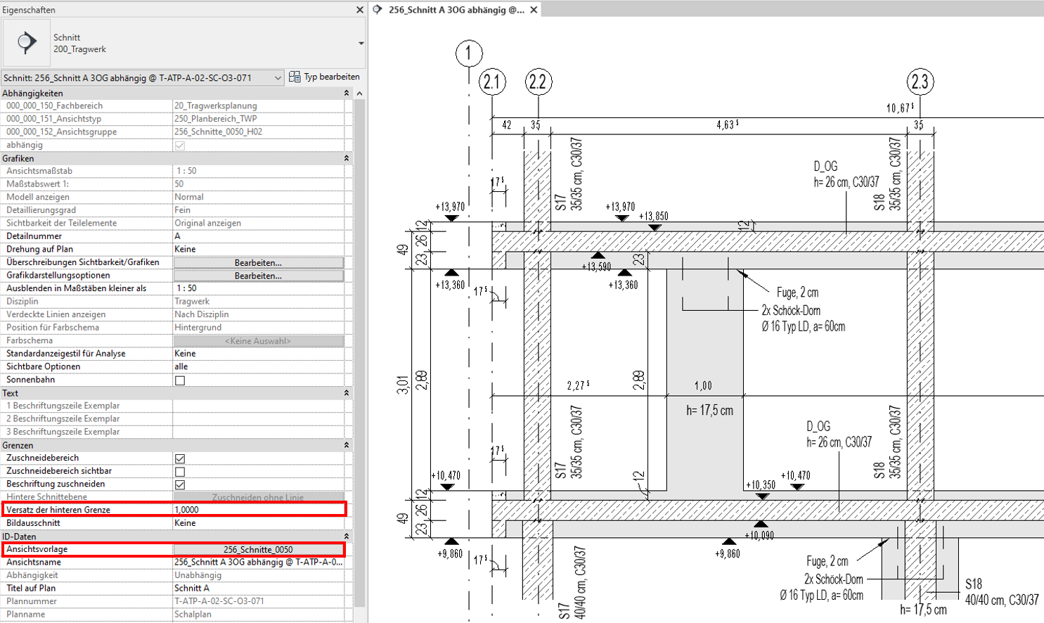
Einstellen der Schnitte
Schnitte werden über die Funktion "Schnitt" mit dem Typ "Tragwerk" erstellt.
- Es sollte die entsprechende im Template hinterlegte Ansichtsvorlage zugewiesen werden
- In den Schnitteigenschaften sollte der Parameter „Versatz der hinteren Grenze“ kontrolliert werden, welcher definiert bis zu welcher Tiefe Bauteile und verdeckte Bauteile dargestellt werden.
- Im Parameter „Ausblenden in Maßstäben kleiner als“ kann definiert werden bis zu welchem Maßstab der Schnitt in einer verweisenden Ansicht sichtbar ist.
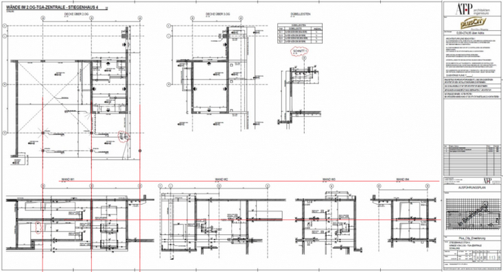
Ansichten
- Ergänzung von Beschriftungen, Bemaßungen, Hinweisen etc. lt. Musterplänen und Erfordernis
- Alle für die Schalung relevanten Bauteile sollten sichtbar sein und bemaßt werden
- Kontrolle der zugewiesenen Ansichtsvorlage
- Elemente und Schnitte, welche nicht auf der Ansicht dargestellt werden sollen und nicht durch die Ansichtsvorlage berücksichtigt werden, können mittels zusätzlicher Filter ausgeblendet werden. Ein manuelles Ausblenden einzelner Elemente ist zu vermeiden.
- Bei den Durchbruchbeschriftungen ist zu beachten, dass diese unter Allgemeine Modellbeschriftungen abgelegt sind, da Durchbrüche im Revit zur Kategorie allgemeines Modell gehören.
- Für eine einheitliche Ansichtsgröße und Rasterlänge bei mehreren Ansichten und für mehrgeschossige Gebäude wird die Zuweisung eines Bildausschnittes empfohlen.
Schnitte
- Ergänzung von Bemaßungen, Höhenkoten und Bauteilbeschriftungen
- Alle für die Schalung relevanten Bauteile sollten sichtbar sein und bemaßt werden
- Kontrolle der zugewiesenen Ansichtsvorlage
- In den Schnitteigenschaften sollte der Parameter „Versatz der hinteren Grenze“ kontrolliert werden, welcher definierte bis zu welcher Tiefe Bauteile und verdeckte Bauteile dargestellt werden
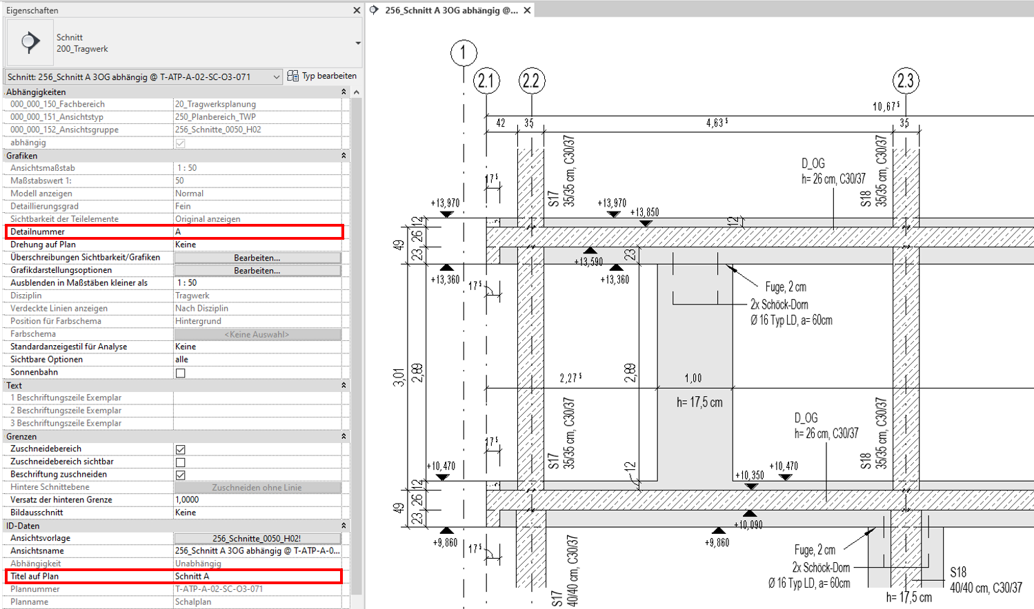
Titel auf Plan und Detailnummer
Ansichten und Schnitte werden per Drag-and-Drop aus dem Projektbrowser auf den Plan gezogen. Bei den Schnitten sollte eine Detailnummer vergeben werden, welche in verweisenden Ansichten am Schnittsymbol angezeigt wird. Der Parameter „Titel auf Plan“ definiert den Titel, welcher auf dem Plan neben der Ansicht erscheint und ersetzt dabei den Ansichtsnamen. Bei Schnitten sollte der „Titel auf Plan“ passend zur Detailnummer gewählt werden.
Graphische Anpassung
Ansichten, Achsen und Ansichtstitel sollten auf dem Plan in eine Flucht gebracht werden. Identische Achsen und Höhen von Ansichten werden dabei beim langsamen Verschieben auf dem Plan automatisch von Revit gefangen und ausgerichtet:
Als zusätzliche Hilfestellung zum Ausrichten kann die Funktion Hilfslinienraster verwendet werden. Alternativ können auch temporär Hilfslinien (Detaillinien) auf den Plan gezogen werden.
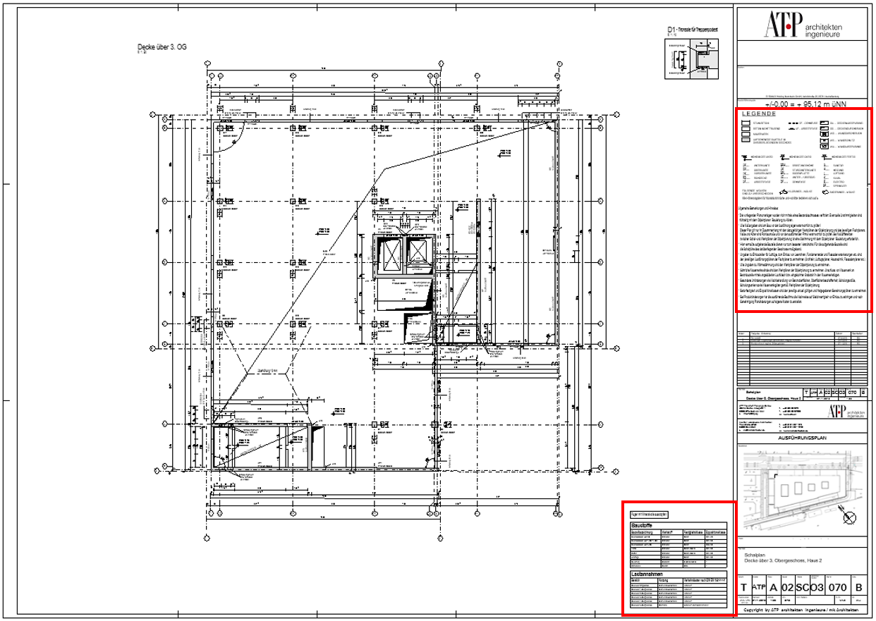
Legenden, Baustofflisten und Hinweistexte sollten auf dem Plankopf platziert werden.
