Ungeachtet der aufgrund von qualitativ hochwertigen BIM-Modellen mittel- bis langfristig als obsolet zu betrachtende Übersetzung einer Bauausführung in die "2D-Sprache" von Plandokumenten ist die Erstellung ebensolcher derzeit noch Bestandteil der Arbeitsweise eines jeden Planungsbüros.
In diesem Tutorial wird die Vorgangsweise der Revit eigenen Planerstellung beschrieben, demnach also die Erzeugung von Sheets OHNE Verwendung zusätzlicher Tools wie bspw. das im BOA-Umfeld eingesetzte Plantool.
Abgerundet wird der Artikel durch Tipps zur Erreichung einer gemeinhin als "gute" Plangrafik bezeichnete Fertigkeit.
Sämtliche zur Planerstellung benötigten Befehle befinden sich im Menü >Ansicht in der Befehls-Gruppe >Planzusammenstellung:
Die nachfolgenden Tutorial-Punkte können als chronologische Abfolge einer Planerstellung verstanden werden:
Neuen Plan anlegen
- Befehl: Menü >Ansicht, Befehls-Gruppe >Planzusammenstellung, Befehl >Plan
- oder alternativ: rechte Maustaste auf >Pläne (alle) im Projektbrowser
Plankopf wählen
Im Befehls-Fenster >Neuer Plan kann ein Plankopf aus der Liste aller im Projekt enthaltenen Planköpf-Familien ausgewählt werden (angezeigt werden diese in der Form Familie : Typ) Es handelt sich dabei um Familien der Kategorie >Beschriftungssymbole und können auch im gleichnamigen Familien-Abschnitt im Projektbrowser eingesehen werden:
(Bemerkung zu den Bildern: Bei ATP werden alle Plankopf-Familien zur besseren Kennzeichnung mit ATP bezeichnet)
Plankopf-Familien im Projektbrowser:
- Sollte ein Plankopf benötigt werden, der noch nicht im Projekt enthalten ist, steht dafür der Befehl >Laden im Befehls-Fenster >Neuer Plan zur Verfügung (siehe Bild weiter oben >Neuer Plan, rechts).
Plannummer/Planname (= Plantitel)
Mit soeben beschriebener Maßnahme wird im Projektbrowser-Abschnitt >Pläne ein neuer Plan (od. auch Sheet = 2d-Blatt bezeichnet) angelegt, wobei die von Revit automatisch generierte Plannummer für gewöhnlich nicht der gewünschten oder dem Projekt zugrunde liegenden Plannummern-Benennungssystemtik entspricht. Zudem wird der Planname, der eigentlich den Plan-Inhalt wiedergeben sollte, vorab von Revit als >Unbenannt erzeugt:
Die somit in jedem Fall erforderliche Umbenennung wird mit rechter Maustaste auf den Plan und dem Menü-Befehl >Umbenennen vorgenommen:
Bemerkung zu Plantitel:
Bei der von Revit als Plantitel bezeichneten Kombination aus Nummer und Name handelt es sich um zwei Parameter, die von Revit fix vorgegeben sind (sog. Built-In-Parameter) und in Abhängigkeit der Plankopf-Parametrisierung für eine Kodierung (= Plannummern-Zusammensetzung) herangezogen werden könnten. Bei ATP ist das allerdings nicht der Fall, weil das für die Planerstellung verwendete >Plantool mit mehreren individuellen, für jegliche Art der Kodierung einsetzbare Parameter arbeitet und auf die Belegung von Nummer und Name verzichtet.
Spezielle Plannummern-Kodierung
In diesem Zusammenhang sei auf den Umstand verwiesen, dass von manchen Bauherrn eine spezielle, auf einer Konzern-internen Verwaltung basierenden Plan-Kodierung verlangt wird (bspw. in der Automobilindustrie). Aus diesem Grund sollte bereits VOR der Erstellung von Plänen mit dem Bauherrn geklärt werden, wie die Kodierung für ein Projekt ausschauen soll. Schließlich haben diese Festlegungen erheblichen Einfluss auf die Parametrisierung und Gestaltung von Planköpfen.
Beispiel für eine Plannummern-Kodierung:
Plan-Verwaltung
Generell ist bei Benennungen und Kodierungen darauf hinzuweisen, dass es sich bei Plänen um wichtige Dokumente handelt und eindeutige Bezeichnungen inkl. ordentlicher Verwaltung im Hinblick auf rechtliche Belange von außerordentlicher Bedeutung sind! Im Zweifelsfall wird empfohlen, für die Zusammenstellung und Parametrisierung von Kodierungen Kontakt mit der Plandata aufzunehmen.
Plankopf-Angaben
Das Befüllen von Angaben auf dem Plankopf - wie beispielsweise die Plan-Nummer, der Planinhalt u. dgl. erfolgt über Direkt-Eingabe in die entsprechenden Parameter (bei Verwendung des Plantools werden diese Werte über Menü-Funktionen befüllt). Folgende Vorgehensweise kommt dabei zur Anwendung:
- den Plankopf auswählen; dabei werden mehrere Fragezeichen angezeigt
- auf das Fragezeichen eines bestimmten Parameters klicken und den gewünschten Wert eingeben (siehe folg. Bilder)
- oder alternativ den Wert in der entspr- Parameter-Zeile im Eigenschaftenfenster eingeben (im Bild ist die Standard-Parametrisierung eines ATP-Plankopfs zu sehen):
Zu den Plankopf-Angaben lasssen sich keine weiteren, allgemein gültigen Aussagen treffen, weil diese zu 100% von der Parametrisierung der Planköpfe abhängt.
Das weiter oben Geschriebene gilt auch für die Plan-Indizierung (_, A, B, ...), den Freigabe-Status (in Bearbeitung) etc.
Views hinzufügen
Dem neu erstellten Plan müssen jetzt Views aus dem Planbereich auf fogende Weise hinzugefügt werden:
- Befehl: Menü >Ansicht, Befehls-Gruppe >Planzusammenstellung, Befehl >Ansicht
- oder alternativ: Einen View mit Drag & Drop vom Projekt-Browser auf den Plan ziehen
Eine exakte Positionierung und Ausrichtung von Views wird im Abschnitt Plangrafik beschrieben. Im Projektbrowser wird der View-Namen um die Plan-Nummer ergänzt (Beispiel ... \@ AA_039), um dem User einerseits die Information zu geben, dass der View bereits in Plan-Verwendung ist und andererseit auf welchem Plan sich der View befindet.
Auswahl des Ansichtsfenster-Typs:
Der hinzugefügte View ist jetzt als Plan-Ansichtsfenster angeordnet, dessen Typ noch geändert werden kann. Die Typ-Unterscheidung beruht dabei auf folgenden Einstellungsmöglichkeiten:
- einfache Ansichtsfenster (im Folgenden kurz als AF bezeichnet) ohne zusätzliche Angaben
- AF inkl. Maßstabs-Angabe: dieser Typ erzeugt zu jedem AF eine Beschriftung mit eben dieser Angabe
- AF inkl. gesonderter Titel-Angabemöglichkeit: dieser Typ erzeugt zu jedem AF eine vom Projektbrowser-Namen unabhängige Beschriftung, um einen bestimmten Titel auf dem Plan angeben zu können
Auch Kombinationen aus diesen Haupttypen sind möglich.
Übersicht über Ansichtsfenster-Typen:
Titel-Text anpassen:
Üblicherweise unterscheidet sich die Bezeichnung des Views auf dem Plan von der Bezeichnung im Projektbrowser. Beispielsweise wird ein Grundriss auf dem Plan lediglich mit 'EG' bezeichnet und nicht mit '154_A_00_EG_0100 \@ AA__039'. Dieser Anforderung wird mit der Möglichkeit begegnet, im Eigenschaftenfenster in der Parameter-Zeile >Titel auf Plan einen anderen Namen eingeben zu könnnen:
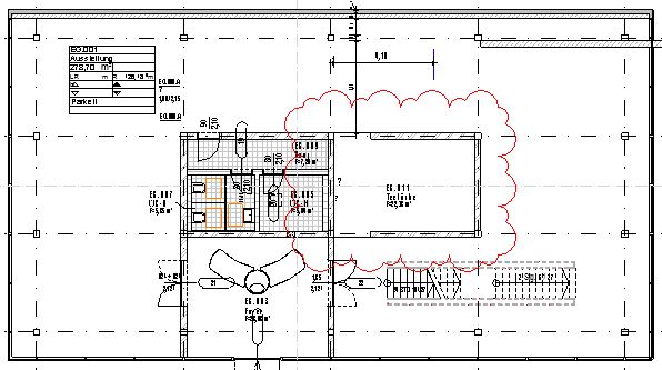
Änderungs-Kennzeichnung (Änderungswolken)
Die Kennzeichnung von Plan-Änderungen (üblicherweise als Wolken dargestellt) erfolgt über die Revit-eigene Beschriftungs-Funktion >Menü Beschriften >Änderungswolke. Da diese Funktion ohne weiteres wie von Autodesk vorgesehen verwendet werden kann, wird an dieser Stelle auf die Autodesk-Hilfe über folgenden Link verwiesen:
Es wird an dieser Stelle lediglich die Empfehlung abgegeben, die Änderungswolken der Überixht halber auf Plänen und nicht auf Views zu platzieren.
Beispiel für die Platzierung auf einem Plan:
Die visuelle Darstellung eines geplanten oder bestehenden Gebäudes in Form von 2d-Plänen sollte immer mit dem Versuch einhergehen, eine möglichst ästhetische Grafik für die Plan-Komposition zu erzielen. Daraus ergeben sich gewisse Anforderungen, dessen Umsetzung im Anschluss erläutert wird:
Positionierung von Views
Häufig ergibt sich aus Plangrafischen-Gründen die Anforderung, Views auf verschiedenen Plänen immer an die selbe Stelle zu positionieren (bspw. Grundrisse für mehrere Geschosse auf verschiedenen Plänen). Folgende, generell noch relativ unbekannte Funktion steht in Revit dafür zur Verfügung:
Befehl für die Erstellung eines neuen Hilfslinienrasters: Menü >Ansicht >Hilfslinienraster
- Aktivierung von Hilfslinienraster auf einem Plan: zum einheitlichen Ausrichten von Views an der selben Stelle auf dem Sheet;
zu finden im Eigenschaften-Fenster ganz unten (Parameter-Gruppe >Sonstige)
- Einstellen des Hilfslinienabstandes bzw. Verschiebung von Rastern
+ Hilfslinienraster am Rand auswählen
+ Hilfslinienabstand eingeben im Eigenschaftenfenster
+ Verschieben von Rastern mit dem herkömmlichen Verschieben-Befehl in der Ändern-Befehlsgruppe
- Anwenden auf andere Pläne: die Anwendung eines Hilslinienrasters für weitere Pläne erfolgt über die wie weiter oben beschriebene Aktivierung im Eigenschaftenfenster mittels Auswahl des entspr. Hilfslinienraster-Namen.
Hier ist eine sinnvolle Benennungssystematik einzuhalten.
- Positionierung von Views an Raster-Punkten
Die exakte Positionierung eines Plans an einer Hilfslinie erfolgt über Raster-Schnittpunkte, d.h. es sollte bei einer Verschiebung als erster Bezugspunkt ein Rasterschnittpunkt und dann ein Hilfslinienschnittpunkt gewählt werden, sodass der Gebäuderaster und der Hilflinienraster zusammenfallen:
Der Hilfslinienraster kann jederzeit über die gleichnamige Zeile im Eigenschaftenfenster ausgeschaltet werden, indem man in der Dropdown-Liste die Einstellung wählt. Hilfslinienraster werden aber standardmäßig nicht ausgedruckt.
Ausrichtung von Views
Häufig ergibt sich aus plangrafischen Gründen die Anforderung, Views auf Plänen gegeneinander auszurichten, also in derselben Flucht zu positionieren (bspw. Grundrisse für mehrere Geschosse exakt neben bzw. untereinander). Folgende Funktion steht in Revit dafür zur Verfügung:
- Beim Verschieben eines Views wird mit einer blau strichlierten Linie (=Spur) angezeigt, dass sich der View exakt in Ausrichtung zu einem anderen View am Plan befindet:
Generell funktioniert der Druck-Befehl in Revit ähnlich wie in anderen CAD-Programmen, weshalb an dieser Stelle auf die Revit-Hilfe über folgenden Link verwiesen werden kann:
Befehl >R (Menübrowser) >Drucken >Drucken
Obwohl jeglicher Plan-Ausdruck natürlich auch direkt an einen physichen Drucker geschickt werden kann, empfiehlt es sich, sämtliche Planstände durch PDF-Ausdrucke zu dokumentieren. Bei ATP wird für diese Anforderung bspw. der Drucker 'PDFCreator' verwendet, der die gebräuchlichsten Druckfunktionen umfasst.
Beispiel für einen Ausdruck mit PDFCreator:
Die für einen Ausdruck wesentlichen Einstellungen wie Blatt-Größe, Format, Zoom etc. findet man unter dem Button >Einstellungen:
Zu beachten ist hier vordergründig die Zoom Einstellung, die bei beabsichtigter Einhaltung eines bestimmten Maßstabs immer auf 100% Größe eingetragen werden muss.
